Grundstück zur Bebauung mit Bauvorbescheid
04159 Leipzig, Grundstück zum Kauf
Kontaktdaten
-
NameHerr Falk Naumann
-
PositionGeschäftsführer
-
FirmaFN Real Estate GmbH
-
AnschriftOtto-Adam-Str. 16 5
04157 Leipzig -
E-Mail
-
Telefon
-
Mobil
Objektdaten
-
Objekt-IDFN_L_HS
-
ObjekttypGrundstück
-
AdresseHallesche Straße
04159 Leipzig
Sachsen -
Grundstück ca.359 m²
-
Grundflächenzahl0.4
-
Erschließungvollerschlossen
-
Käuferprovision7,14 % inkl. ges. MwSt., fällig nach unterzeichneten notariellen Kaufvertrag
-
Kaufpreis210.000 EUR
Energieausweis
-
Energieausweisnicht erforderlich
Objektbeschreibung
Zum Verkauf steht ein attraktives Baugrundstück in der Halleschestraße in Leipzig, ideal geeignet für die Errichtung eines Mehrfamilienhauses oder eines Wohn- und Geschäftshauses. Für das Grundstück liegt bereits eine positive Bauvoranfrage des aktuellen Eigentümers vor, sodass die grundsätzliche Bebaubarkeit bestätigt ist und Planungssicherheit besteht.
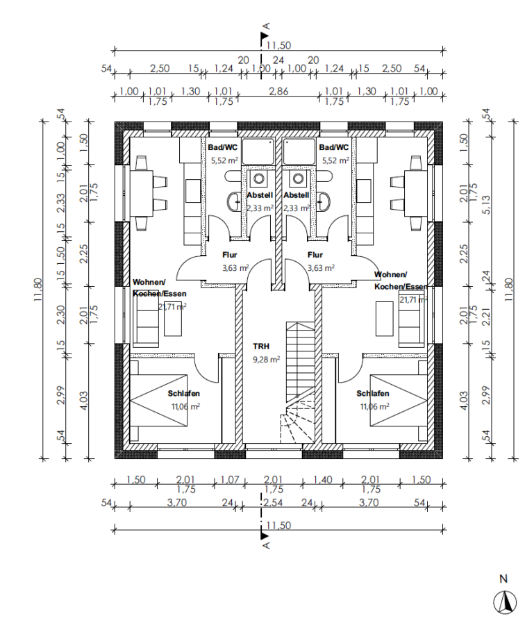
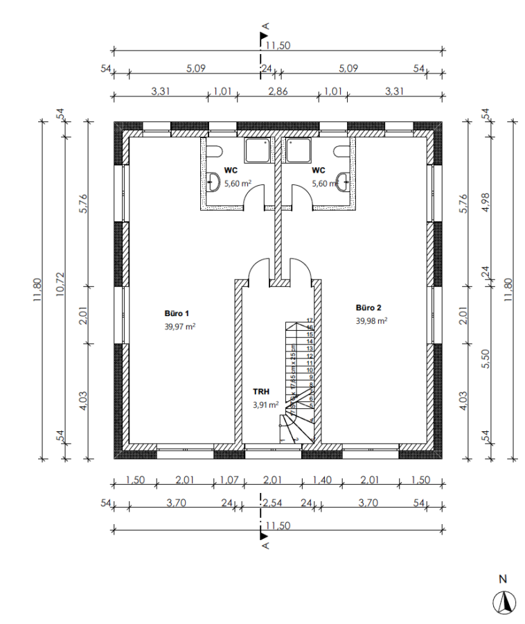
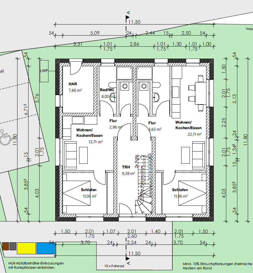
Das geplante Gebäude umfasst drei Vollgeschosse mit Flachdach und bietet eine Gesamtwohn- bzw. Nutzfläche von ca. 255 m², verteilt auf 3 Etagen. Im 2. Obergeschoss ist derzeit eine Gewerbeeinheit vorgesehen, welche jedoch ohne Weiteres auch zu Wohnzwecken umgeplant werden kann. Damit bietet das Projekt Flexibilität für unterschiedliche Nutzungskonzepte – ob reine Wohnnutzung oder eine Kombination aus Wohnen und Arbeiten.
Zusätzlich sieht die Planung die Errichtung von vier Stellplätzen auf dem Grundstück vor, was die Attraktivität des Objekts sowohl für zukünftige Bewohner als auch mögliche Gewerbetreibende erhöht.
Dieses Grundstück stellt eine hervorragende Gelegenheit dar, ein modernes Wohn- oder Wohn-/Geschäftsobjekt in gefragter Leipziger Lage zu realisieren – mit bereits positiv geprüfter baurechtlicher Grundlage und flexiblen Nutzungsmöglichkeiten.
Lage
Das Grundstück befindet sich in Leipzig in der Halleschestraße, direkt gegenüber der Einfahrt zum Freirodaer Weg. Die Lage zeichnet sich durch eine gute Anbindung an den öffentlichen Nahverkehr sowie kurze Wege zu Einkaufsmöglichkeiten, Dienstleistungen und Einrichtungen des täglichen Bedarfs aus. Durch die Nähe zu wichtigen Verkehrsachsen ist das Grundstück sowohl für Wohn- als auch Gewerbenutzung hervorragend geeignet und bietet eine ideale Mischung aus urbaner Erreichbarkeit und ruhiger Umgebung.
Sie sehen gerade einen Platzhalterinhalt von Google Maps. Um auf den eigentlichen Inhalt zuzugreifen, klicken Sie auf die Schaltfläche unten. Bitte beachten Sie, dass dabei Daten an Drittanbieter weitergegeben werden.
Mehr InformationenDie dargestellte Position der Immobilie ist nur eine ungefähre Angabe.







